Attico con terrazza panoramica a Silandro

Dati di base

Tipologia dell’oggettoAppartamento
LocalitàSilandro
Camere3
Classe energetica
F
Prezzo d’acquisto340'000 €
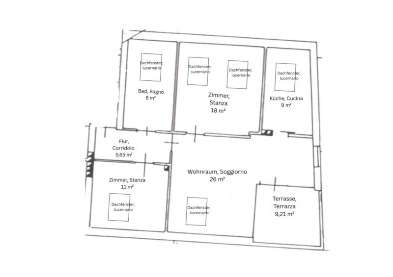
Superficie m²103.0
StatoNon nuovo
Anno di costruzione1991
StatoArredo da concordare
IDIW106314

Azioni

Carica / stampa PDF remove favorite Ricorda
Cliccare su un’immagine per far partire il diashow

Dettagli

Prezzo d’acquisto340'000 €
Spese accessorie1'440 €
Superficie m²103.0

Arredo

BagnoDoccia, Vasca da bagno
CucinaCucina componibile
PavimentoParquet
Orientamento balcone/terrazzaSud, Ovest
AmmobiliatoSemi ammobiliato

Posti macchina

Tipo Numero Prezzo
Garage 1

Descrizione

Nel centro di Silandro si trova questo luminoso attico al 3° piano di una palazzina costruita nel 1991. L’immobile colpisce per la distribuzione razionale degli spazi, con un ampio soggiorno e accesso alla terrazza soleggiata, dalla quale si apre una splendida vista sui tetti di Silandro. Una cucina separata, due camere da letto e un ampio bagno finestrato offrono spazio sufficiente e funzionalità. L’offerta è completata da un posto auto in garage e da una cantina adiacente. Grazie alla posizione centrale, negozi, scuole e altri servizi sono comodamente raggiungibili a piedi.

Offerenti

Vivo Immobili
Piazza Gries 18
39011 Lana
Cell.
+39 389 6221834
Chiudi