Grande casa unifamiliare con potenziale

Dati di base

Tipologia dell’oggettoCasa / Casa
LocalitàLaives
Classe energetica
G
Prezzo d’acquisto699'000 €
Superficie m²275.0
StatoNon nuovo
Anno di costruzione1969
StatoCurato
IDIW106487

Azioni

Carica / stampa PDF remove favorite Ricorda
Cliccare su un’immagine per far partire il diashow

Dettagli

Prezzo d’acquisto699'000 €
Superficie m²275.0

Posti macchina

Tipo Numero Prezzo
Garage 1
Posto macchina 3

Descrizione

Questa casa unifamiliare in posizione tranquilla e interna offre un elevato livello di privacy e libertà di progettazione. Si trova su un ampio terreno privato di circa 900 mq, che offre spazio sufficiente per un giardino, aree salotto o ulteriori possibilità di utilizzo. Grazie alla sua solida struttura e alla suddivisione ben studiata su quattro piani, l'immobile è adatto sia come grande casa unifamiliare che, con un'adeguata ristrutturazione, come casa bifamiliare o trifamiliare.
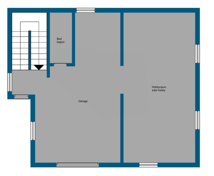
Nel seminterrato si trovano due ampie cantine, ideali per lo stoccaggio, un piccolo laboratorio o come cantina per i vini. Il piano terra ospita un garage, un bagno e una sala hobby che può essere utilizzata in modo flessibile, ad esempio come palestra, studio o spazio abitativo aggiuntivo.
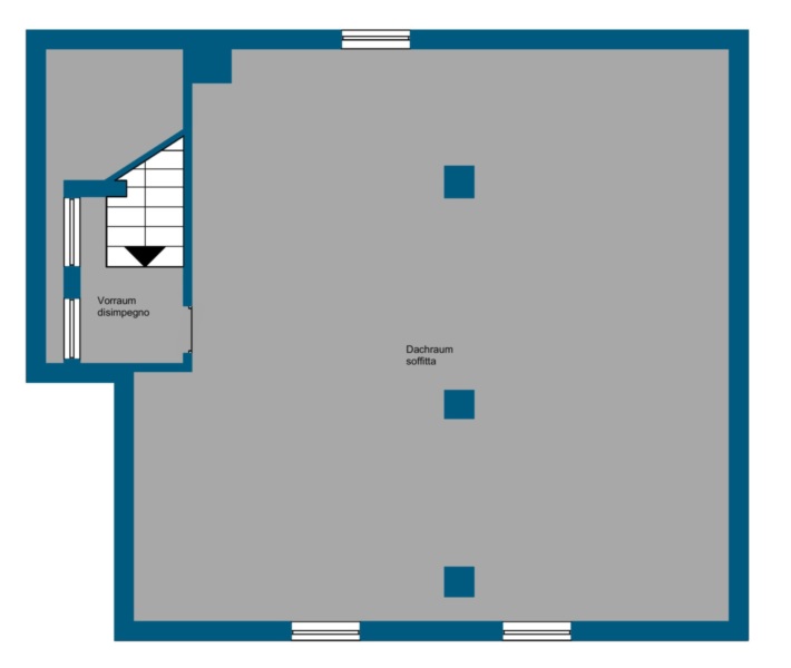
Il primo piano costituisce la zona giorno centrale e comprende un ampio trilocale che, grazie alla sua disposizione ben studiata e alla sua luminosità, trasmette una piacevole sensazione di comfort. La mansarda completa lo spazio disponibile e può essere utilizzata come soffitta o come riserva di ampliamento, perfetta per una camera degli ospiti, un ufficio o uno studio con vista sul verde.
Un altro punto a favore: il riscaldamento autonomo a gas è stato recentemente rinnovato, garantendo non solo efficienza energetica, ma anche sicurezza di funzionamento a lungo termine.
Questa casa è ideale per famiglie o investitori che cercano un immobile versatile con un grande potenziale, immerso in un ambiente tranquillo ma comunque facilmente raggiungibile.

Offerenti

Rimmo Immobili Alto Adige
Via Innsbruck 29
39100 Bolzano
Tel.
+39 0471 982 844
Chiudi