E - Spazioso trilocale con terrazza

Dati di base

Tipologia dell’oggettoAppartamento / Piano terra
LocalitàDobbiaco
Via, N˚Via al Lago 8
Camere4
Piano1
Prezzo d’acquisto930'000 €
Superficie m²126.0
Anno di costruzione2025
IDIW107528

Azioni

Carica / stampa PDF remove favorite Ricorda
Cliccare su un’immagine per far partire il diashow

Prezzi

Prezzo d’acquisto930'000 €

Superfici

Superficie m²126.0
Superficie netta m²78.2
Cantina m²12.5
Balcone/Terrazza m²49.0

Numero superfici

Camere da letto3
Bagni2
Posti macchina35000

Arredo

Tipo di riscaldamentoA pavimento
RiscaldamentoTeleriscaldamento
AscensoreAscensore
Munito di cantina

Descrizione

GLORIA - vi presentiamo un eccezionale progetto di nuova costruzione a Dobbiaco con un totale di sette eleganti unità abitative. Grande enfasi è data agli standard moderni, al comfort e alle finiture di alta qualità. Questo quadrilocale dispone di tre spaziose camere da letto, due bagni con doccia e una splendida zona giorno/pranzo con vista sul verde. L'ampia terrazza solarium completa l'offerta.
L'inizio dei lavori è previsto per il 2025 e l'edificio vanta un'architettura elegante e classica che si fonde armoniosamente con elementi di design contemporaneo.
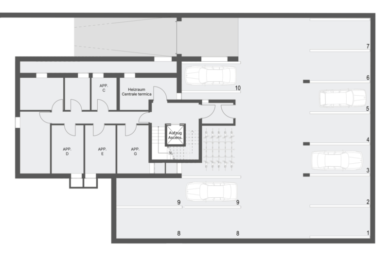
Ogni appartamento dispone anche di un locale seminterrato privato, facilmente accessibile da tutti i piani grazie all'ascensore.
I posti auto in garage nel seminterrato possono essere acquistati separatamente (+35.000 euro).

Offerenti

Castellanum
Via Tratten 7
39042 Bressanone
Tel.
0472201250
Chiudi