Ufficio / Studio spazioso in edificio direzionale
Dati di base
| Tipologia dell’oggetto | Ufficio/Studio |
|---|---|
| Località | Cortaccia sulla strada del vino |
| Classe energetica | PASSIV |
| Prezzo d’acquisto | 225'000 € |
| Superficie m² | 106.9 |
| Stato | Non nuovo |
| Anno di costruzione | 2004 |
| Stato | Come nuovo |
| ID | IW107827 |
Dettagli
| Prezzo d’acquisto | 225'000 € |
|---|---|
| Superficie m² | 106.9 |
| Superficie netta m² | 85.0 |
Descrizione
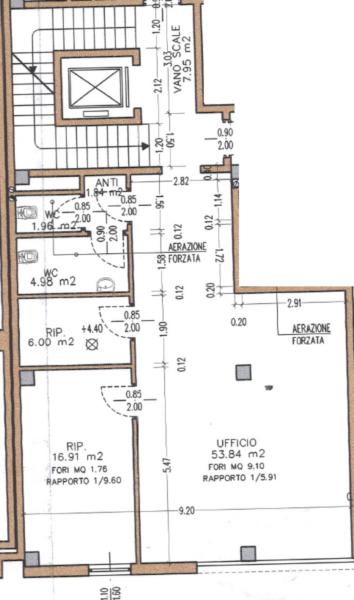
In vendita ufficio / studio professionale di rappresentanza con 85 m² di superficie netta, situato al primo piano di un curato edificio direzionale in posizione strategica.
L’immobile si distingue per la distribuzione funzionale e gli spazi ampi, risultando ideale per ufficio, studio professionale, agenzia, ambulatorio o attività di servizi.
Distribuzione degli spazi:
Ampio locale principale di oltre 50 m², perfetto come open space, area operativa o reception
Ufficio separato / ufficio direzionale
Ripostiglio
Due bagni
Dotazioni e punti di forza:
Primo piano con ascensore
Posto auto privato incluso
Riscaldamento e raffrescamento centralizzati
Videocitofono
Impianto di videosorveglianza
Contesto professionale e curato
Posizione interessante e facilmente accessibile
L’edificio offre un’infrastruttura moderna e un ambiente lavorativo rappresentativo. La suddivisione degli spazi garantisce comfort, privacy e massima flessibilità d’uso.
Conclusione:
Una soluzione moderna e ben organizzata, con ampio spazio principale, ideale per professionisti, aziende o come investimento.

Login
Password dimenticata
Carica / stampa PDF
Ricorda

