Gewerbehalle in der Handwerkerzone

Dati di base

Tipologia dell’oggettoArtigianato/Industriale / Deposito
LocalitàVarna
Via, N˚Brennerstraße 17e
Prezzo d’acquisto890'000 €
Superficie m²402.0
IDIW106282

Azioni

Carica / stampa PDF remove favorite Ricorda
Cliccare su un’immagine per far partire il diashow

Dettagli

Prezzo d’acquisto890'000 €
Superficie m²402.0
Superficie netta m²375.0
WC sep.1

Arredo

Altezza locali4

Descrizione

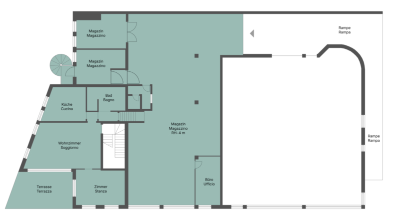
A Varna, a nord di Bressanone e direttamente sulla strada principale, proponiamo in vendita un capannone con alloggio di servizio. L‘immobile comprende un capannone al piano superiore con un‘altezza dei locali di circa 4 m, un ufficio con servizi igienici e un ampio alloggio di servizio. Per l‘appartamento esiste già un progetto approvato per una terrazza di circa 20 m². Il magazzino è accessibile tramite una rampa, l‘alloggio di servizio tramite una scala. È inoltre possibile collegare il magazzino e l‘appartamento.

Offerenti

Castellanum
Via Tratten 7
39042 Bressanone
Tel.
0472201250
Chiudi