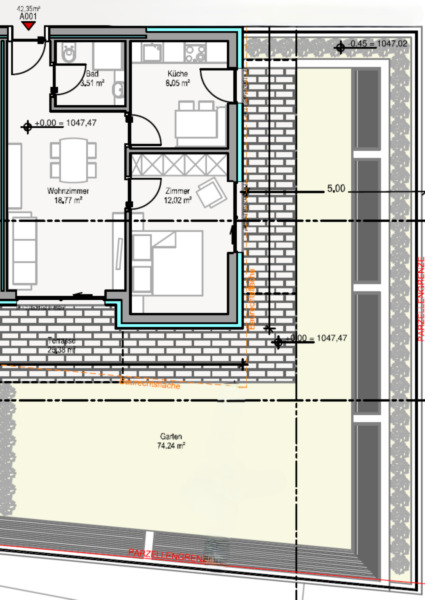
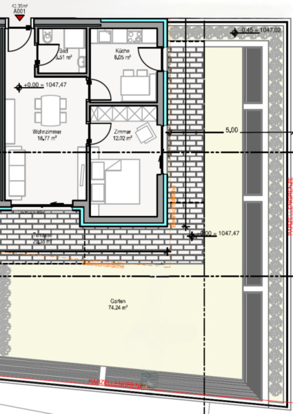
A001 Valdaora: Residenza Paul: Il vostro elegante appartamento trilocale al piano terra con terrazza e giardino

Dati di base

Tipologia dell’oggettoAppartamento
LocalitàValdaora
Camere3
Piano0
Prezzo d’acquistoPrezzo a richiesta
Superficie m²68.0
Anno di costruzione2026
IDIW107411

Azioni

Carica / stampa PDF remove favorite Ricorda
Cliccare su un’immagine per far partire il diashow

Prezzi

Prezzo d’acquistoPrezzo a richiesta
più IVA

Superfici

Superficie m²68.0
Superficie netta m²42.0

Numero superfici

Bagni1
Camera giorno/notte1
Posti macchina1

Arredo

Munito di cantina

Descrizione



Nel cuore di Valdaora sorge il Residence Paul, un nuovo edificio di alta qualità con 14 unità abitative, ricavato dalla ristrutturazione di un maso esistente. Il complesso offre una varietà di soluzioni abitative: dai monolocali compatti agli spaziosi appartamenti da 2 a 4 locali, fino a un esclusivo appartamento duplex.

Questo trilocale al piano terra vanta una disposizione ben progettata: dispone di una cucina moderna, una confortevole zona giorno, una camera da letto e un bagno. Il giardino privato e l'ampia terrazza estendono lo spazio abitativo all'aperto, creando un rifugio idilliaco con vista sulle montagne circostanti. Una cantina è inclusa; un garage può essere acquistato separatamente con un supplemento.

Grazie alla sua costruzione a risparmio energetico e all'eccellente isolamento acustico, godrete del massimo comfort abitativo in un ambiente tranquillo e naturale. La posizione centrale coniuga relax e accesso ottimale alle infrastrutture e a un'ampia gamma di attività per il tempo libero.

Nota: questa proprietà è soggetta a un contratto di locazione e può essere occupata solo da persone autorizzate.

Scoprite la combinazione perfetta tra natura, architettura moderna e alta qualità della vita nel Residence Paul, la vostra nuova casa a Valdaora.

Offerenti

Seeber Immobilien s.r.l.
Via dei portici 70
39100 Bolzano
Tel.
+39/339/8281766
Cell.
+39/340/3806901
Chiudi