Nuovo progetto edilizio con appartamenti per i residenti
Dati di base
| Tipologia dell’oggetto | Appartamento |
|---|---|
| Località | Ultimo |
| Classe energetica | A |
| Convenzionato | ![]() |
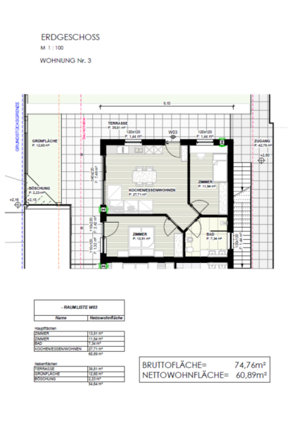
| Superficie m² | 89.9 |
| Stato | Nuovo |
| Anno di costruzione | 2026 |
| Stato | Primo ingresso |
| ID | IW108405 |
Superfici
| Superficie m² | 89.9 |
|---|---|
| Superficie netta m² | 60.9 |
| Giardino m² | 12.6 |
| Cantina m² | 4.8 |
| Balcone/Terrazza m² | 39.8 |
Numero superfici
| Bagni | 1 |
|---|---|
| Balconi/Terrazze | 1 |
| Camera giorno/notte | 3 |
Arredo
| Vista | Vista panoramica, Lago, Montagne |
|---|
Descrizione
In splendida posizione in Val d’Ultimo nasce a Pracupola un nuovo progetto residenziale di pregio composto da 9 moderne unità abitative, distribuite su due corpi di fabbrica. Qui l’abitare a contatto con la natura si unisce al comfort contemporaneo – ideale per chi desidera tranquillità, qualità della vita e un forte senso di comunità.
Gli appartamenti saranno realizzati secondo lo standard CasaClima A Nature, garanzia di massima efficienza energetica, costruzione sostenibile e bassi costi di gestione. Garage e cantine si trovano direttamente al piano interrato e sono comodamente accessibili come pertinenze.
La posizione è particolarmente interessante: nelle immediate vicinanze si trova la cabinovia per il comprensorio sciistico ed escursionistico Schwemmalm – un vero paradiso per gli amanti degli sport invernali e della natura. A pochi passi si raggiungono inoltre una pista di pattinaggio su ghiaccio, una pista da sci di fondo e numerosi sentieri escursionistici. Anche i servizi sono facilmente accessibili: un ristorante, una pizzeria e diversi bar si trovano nelle immediate vicinanze e sono raggiungibili comodamente a piedi.
Gli appartamenti sono convenzionati al 100% (art. 39 L.P. n. 9/2018), ciò significa che possono essere occupati esclusivamente da residenti o da persone con contratto di lavoro in Provincia di Bolzano come abitazione principale e non possono essere utilizzati come casa vacanze.
Attualmente sono ancora disponibili appartamenti bilocali, trilocali e quadrilocali – ideali per single, coppie e famiglie.
(Le visualizzazioni/rendering hanno scopo illustrativo. Sono riservate eventuali differenze o modifiche nell’esecuzione finale).
Offerenti

J. Unterholzner
via Madonna del suffragio 24
39011 Lana

Login
Password dimenticata
Carica / stampa PDF
Ricorda













