Locale commerciale con buona visibilità
Dati di base
| Tipologia dell’oggetto | Negozio / Negozio |
|---|---|
| Località | Terento |
| Via, N˚ | Strada del Sole Val Pusteria 22 |
| Affitto senza spese | 800 € |
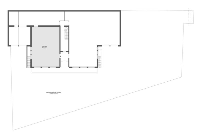
| Superficie m² | 139.0 |
| Anno di costruzione | 1976 |
| ID | IW106892 |
Dettagli
| Affitto senza spese | 800 € |
|---|---|
| Superficie m² | 139.0 |
| Superficie netta m² | 107.0 |
| WC sep. | 2 |
Arredo
| Riscaldamento | Teleriscaldamento |
|---|---|
| Munito di cantina | No |
Descrizione
Il locale commerciale in affitto al piano terra si trova in posizione centrale a Terento e comprende una superficie netta di 107 metri quadrati. Grazie alla posizione direttamente sulla strada, l‘immobile offre un‘eccellente visibilità. Davanti all‘edificio ci sono numerose possibilità di parcheggio nel cortile comune, che offrono ai vostri clienti un accesso comodo.

Login
Password dimenticata
Carica / stampa PDF
Ricorda





