Arredo
| Uso giardino |  |
|---|
| Tipo di riscaldamento | A pavimento |
|---|
| Ascensore | Ascensore |
|---|
| Munito di cantina | Sì |
|---|
Descrizione
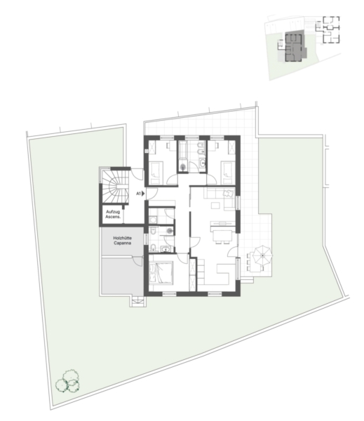
Quadrilocale convenzionale al piano terra con terrazza e ampio giardino.
Questa proprietà dal design generoso si estende su circa 91 metri quadrati di spazio abitativo. Con tre camere da letto e un'attraente zona giorno e pranzo, offre una disposizione degli ambienti ideale per tutta la famiglia. L'ampio giardino di circa 290 metri quadrati è perfetto per gli amanti del giardinaggio e dell'aria aperta. Una capanna in legno adiacente offre ulteriore spazio di archiviazione. Nel seminterrato è presente un vano cantina per ulteriori possibilità di stoccaggio. I posti auto in garage possono essere acquistati separatamente per 30.000 euro.
Questa unità è un appartamento per residenti ai sensi dell'art. 39 della Legge Provinciale 9/2018. Pertanto, non può essere utilizzata come appartamento per le vacanze.