Casa a schiera ad angolo ben tenuta con giardino

Dati di base

Tipologia dell’oggettoCasa / Casa a schiera
LocalitàNova Ponente
Classe energetica
G
Prezzo d’acquisto850'000 €
Superficie m²229.0
StatoNon nuovo
StatoCurato
IDIW106376

Azioni

Carica / stampa PDF remove favorite Ricorda
Cliccare su un’immagine per far partire il diashow

Dettagli

Prezzo d’acquisto850'000 €
Superficie m²229.0

Posti macchina

Tipo Numero Prezzo
Garage 1
Posto macchina 2

Descrizione

A Monte San Pietro , un incantevole quartiere del comune di Nova Ponente, questa casa a schiera angolare ben tenuta è la dimora ideale per chi apprezza la privacy e la qualità abitativa. La casa è circondata su tre lati da un giardino privato di 210 mq curato con amore e si trova in una posizione piacevole, lontana dal traffico e dal trambusto, in modo da poter godere indisturbati della vita all'aria aperta.
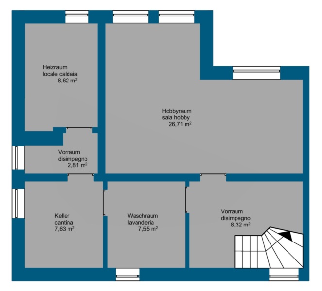
L'immobile si sviluppa su quattro piani, progettati con cura e che offrono molto spazio per le esigenze più disparate. Nel seminterrato si trovano, oltre a una pratica cantina, una lavanderia, un locale tecnico/caldaia e un ulteriore locale hobby, ideale per il fitness, come officina o per attività ricreative.
Il piano terra costituisce la zona giorno centrale: qui si trovano un bagno di servizio, una cucina separata e un luminoso soggiorno con accesso diretto al giardino, perfetto per momenti conviviali all'aperto.
Il primo piano ospita tre camere da letto e un bagno e funge quindi da accogliente rifugio. Nella mansarda si trovano un ampio soppalco e un altro locale lavanderia, utilizzabili in vari modi, ad esempio come studio, ufficio o camera per gli ospiti.
Completano questa interessante offerta un garage di 33 mq e diversi posti auto all'aperto, che offrono spazio sufficiente per i veicoli della famiglia e degli ospiti.
Una casa che convince per gli ampi spazi, lo stato di manutenzione e la posizione piacevole immersa nella natura di Nova Ponente.

Offerenti

Rimmo Immobili Alto Adige
Via Innsbruck 29
39100 Bolzano
Tel.
+39 0471 982 844
Chiudi