Unità commerciale nel complesso “Rio Sinigo”
Dati di base
| Tipologia dell’oggetto | Artigianato/Industriale |
|---|---|
| Località | Merano |
| Classe energetica | E |
| Affitto senza spese | 1'938 € |
| Superficie netta m² | 323.0 |
| Stato | Nuovo |
| Stato | Primo ingresso |
| ID | IW106450 |
Dettagli
| Affitto senza spese | 1'938 € |
|---|---|
| Superficie netta m² | 323.0 |
| Bagni | 1 |
Descrizione
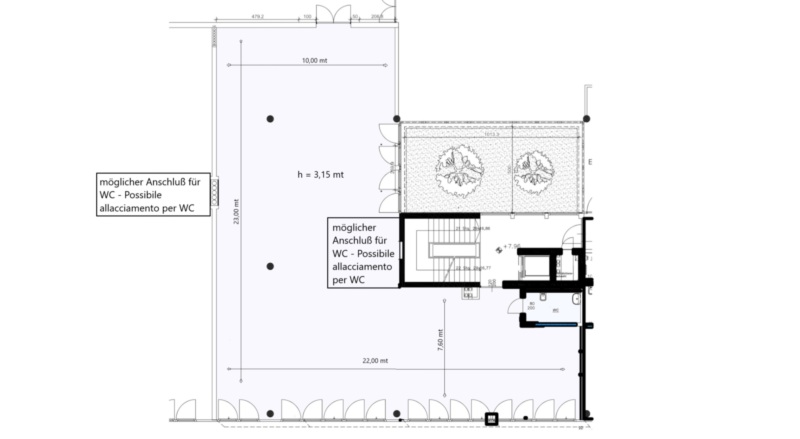
Al 2° piano del complesso “Parco Commerciale Rio Sinigo” è disponibile in locazione un’ampia superficie commerciale di 323 m² netti (altezza 3,15 m). L’unità è destinata ad uso terziario e si distingue per l’ottima accessibilità: la merce può essere scaricata comodamente tramite una rampa di carico e trasportata direttamente al 2° piano con un montacarichi (portata 4.000 kg).
L’immobile dispone di due accessi ed è dotato di pavimento industriale verniciato grigio. Sono presenti un WC con predisposizione per cabina doccia, allacciamenti per cucina e collegamento al riscaldamento centralizzato a gas. La portata del solaio è di 750 kg/m².
All’unità spettano 3 posti auto al piano interrato (70,00 € ciascuno + IVA).
Canone mensile: 1.938,00 € + IVA
Durata contratto: 6 + 6 anni
Spese accessorie: spese condominiali e di consumo (es. luce, rifiuti), manutenzione porte tagliafuoco e adeguamenti obbligatori previsti per l’attività (es. impianto antincendio)
Deposito cauzionale: 9 mensilità
Consegna: ca. 3–4 mesi dalla firma del contratto; attualmente non è ancora presente l’agibilità
Obblighi: assicurazione RC rischio locativo e incendio con massimale secondo le disposizioni del locatore
Provvigione: 2.907,00 € + IVA
Il contratto di locazione viene predisposto dal locatore; i relativi costi sono a carico del conduttore per la metà (ca. 350,00 € + IVA). A fine locazione l’immobile dovrà essere restituito nello stato originario, libero da installazioni, divisori e arredi.

Login
Password dimenticata
Carica / stampa PDF
Ricorda





