Nuovo trilocale spazioso con ampio giardino privato

Dati di base

Tipologia dell’oggettoAppartamento
LocalitàFunes
Camere3
Piano1
Prezzo d’acquisto476'000 €
Superficie m²133.0
Anno di costruzione2024
IDIW106272

Azioni

Carica / stampa PDF remove favorite Ricorda
Cliccare su un’immagine per far partire il diashow

Dettagli

Prezzo d’acquisto476'000 €
Superficie m²133.0

Descrizione

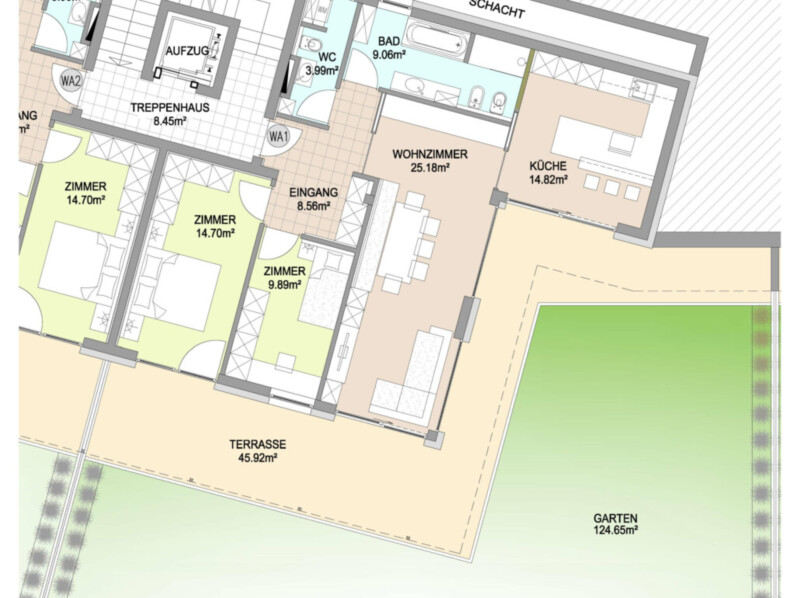
In una posizione tranquilla e immersa nella natura di S. Pietro in Funes si trova un complesso residenziale di alta qualità, in cui è in vendita questo attraente trilocale con giardino privato. La zona unisce la quiete rurale con un buon collegamento ai paesi vicini e ai principali servizi.

L’appartamento offre spazi ben distribuiti: un accogliente ingresso conduce alla zona giorno con cucina a vista, mentre due camere da letto spaziose e un bagno moderno completano la disposizione interna. Le ampie aperture vetrate garantiscono molta luce naturale e un’atmosfera accogliente. Il giardino e la terrazza privata consentono un contatto diretto con l’aria aperta e la natura.

All’appartamento appartiene 1 cantina inclusa nel prezzo. Inoltre vi è la possibilità di acquistare 1 garage al prezzo di € 25.000,00.

L’edificio è stato realizzato con elevati standard tecnici ed energetici. Grande attenzione è stata dedicata alla qualità dei materiali, agli impianti moderni e a una costruzione sostenibile.

Questa unità è adatta sia a famiglie che a coppie o come seconda casa in un contesto paesaggistico di grande fascino. Anche per gli investitori rappresenta un’interessante opportunità grazie all’ottima redditività e alla facile locazione nella valle di Funes, in una zona tranquilla con finiture di pregio e spazi esterni esclusivi.


Maggiori informazioni qui: https://www.ruth-immobilien.com/it/immobile/nuovo-trilocale-spazioso-con-ampio-giardino-privato_21184

Ruth Immobilien
Dorfstraße 12 / Via del Paese
39040 Vahrn / Varna (BZ)
Tel. +39 0472 970090

Offerenti

Ruth Immobilien s.r.l.
Piazza Walther 2
39100 BOLZANO
Tel.
+39 0472 970090
Fax.
+39 0472 970091
Chiudi