Bilocale con giardino (C)

Dati di base

Tipologia dell’oggettoAppartamento / Piano terra
LocalitàDobbiaco
Camere2
Piano0
Prezzo d’acquisto420'000 €
Superficie m²87.0
Anno di costruzione2025
StatoPrimo ingresso
IDIW107395

Azioni

Carica / stampa PDF remove favorite Ricorda
Cliccare su un’immagine per far partire il diashow

Prezzi

Prezzo d’acquisto420'000 €

Superfici

Superficie m²87.0
Superficie netta m²38.0
Giardino m²140.0
Cantina m²7.0
Balcone/Terrazza m²48.0

Numero superfici

Camere da letto1
Bagni1
Posti macchina1

Arredo

Tipo di riscaldamentoA pavimento
RiscaldamentoTeleriscaldamento
AscensoreAscensore
Munito di cantina

Descrizione

Benvenuti nella vostra nuova casa! Questo affascinante appartamento al piano terra nel comune di Dobbiaco offre la perfetta combinazione di comfort moderno e praticità.

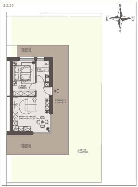
L'appartamento si trova al piano terra di un nuovo progetto edilizio ed è composto da un ingresso, un soggiorno con angolo cottura, una camera da letto e un'ampia terrazza con giardino. Un locale cantina offre ulteriore spazio di archiviazione. I garage possono essere acquistati con un costo aggiuntivo di 35.000 euro + IVA.

Non perdete l'opportunità di fare di questo affascinante appartamento al piano terra la vostra casa. Non solo acquisterete un immobile di prima classe, ma anche un pezzo di qualità della vita nella pittoresca Dobbiaco.

L'appartamento è libero, non convenzionato, e può quindi essere utilizzato anche come seconda casa o casa per le vacanze.

Offerenti

Immobiliare Niederkofler S.r.l - dal 1948
Via Galileo Galilei 6
39031 Brunico
Tel.
+39/0474/410400
Cell.
+39/335/440891
Fax.
+39/0474/411189
Chiudi