Prestigioso ufficio nel cuore del centro storico di Bolzano

Dati di base

Tipologia dell’oggettoUfficio/Studio / Ufficio
LocalitàBolzano
Prezzo d’acquisto920'000 €
Superficie m²256.0
IDIW108808

Azioni

Carica / stampa PDF remove favorite Ricorda
Cliccare su un’immagine per far partire il diashow

Dettagli

Prezzo d’acquisto920'000 €
Superficie m²256.0

Descrizione

Proponiamo in vendita un ampio ufficio situato in posizione prestigiosa nel cuore del centro storico di Bolzano, nella ricercata Via Raffaello Sernesi. La posizione centrale e rappresentativa offre un’eccellente infrastruttura con negozi, ristoranti, banche e mezzi pubblici nelle immediate vicinanze, rendendo l’immobile particolarmente interessante sia per aziende che per investitori.

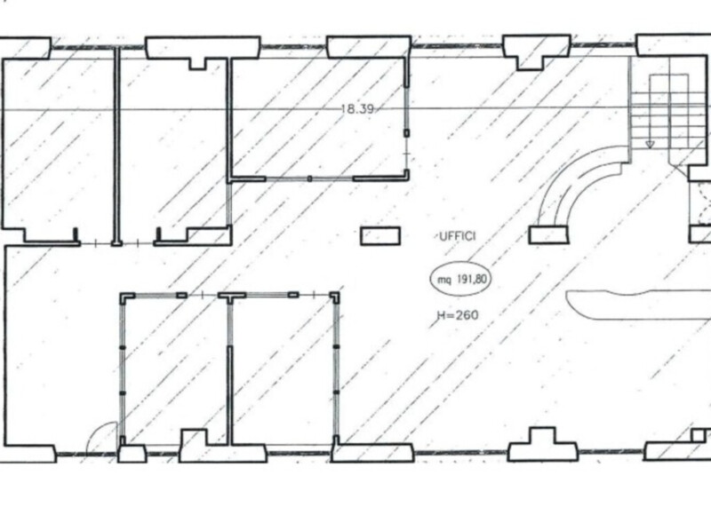
L’ufficio dispone di una superficie complessiva di circa 255 m² ed è disposto su due livelli: piano rialzato e seminterrato.

Al piano rialzato si trovano 7 uffici, che consentono una suddivisione flessibile degli spazi e risultano ideali per diversi ambienti di lavoro, sale riunioni o uffici individuali.

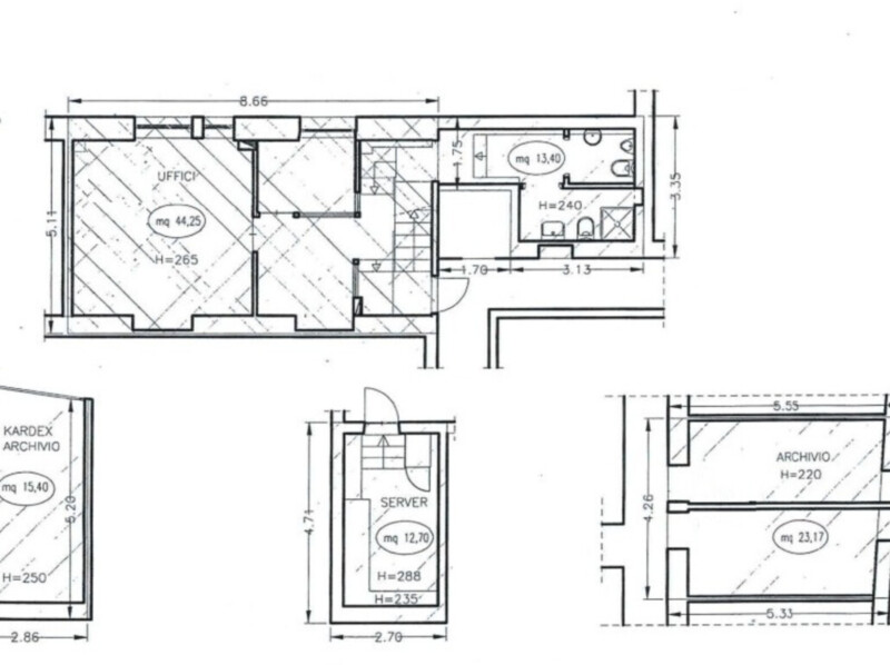
Il piano seminterrato offre ulteriori spazi funzionali ed è composto da un ulteriore ufficio, un archivio, una sala server e due bagni. Questo livello si presta perfettamente per attività amministrative, locali tecnici o ulteriori postazioni di lavoro.

La proprietà si completa con 1 cantina, che offre ulteriore spazio di deposito.

L’immobile è attualmente locato fino a giugno 2026 e garantisce un canone annuo di 39.600 €. Ciò rende questa proprietà un interessante investimento con reddito garantito, offrendo allo stesso tempo la possibilità di un utilizzo diretto in futuro in una delle zone più richieste di Bolzano.


Maggiori informazioni qui: https://www.ruth-immobilien.com/it/immobile/prestigioso-ufficio-nel-cuore-del-centro-storico-di-bolzano_22426

Ruth Immobilien
Waltherplatz 2 / Piazza Walther
39100 Bozen / Bolzano
Tel. +39 0471 090790

Offerenti

Ruth Immobilien s.r.l.
Via del Paese 12
39040 Varna
Tel.
+39 0472 970090
Fax.
+39 0472 970091
Chiudi