Nuovo appartamento di 4 locali con terrazza in posizione soleggiata a Barbiano

Dati di base

Tipologia dell’oggettoAppartamento
LocalitàBarbiano
Camere4
Piano1 von 3
Prezzo d’acquisto450'000 €
Superficie m²106.0
Anno di costruzione2025
IDIW106730

Azioni

Carica / stampa PDF remove favorite Ricorda
Cliccare su un’immagine per far partire il diashow

Dettagli

Prezzo d’acquisto450'000 €
Superficie m²106.0
Superficie netta m²85.0
Bagni1
Camera giorno/notte3

Arredo

Munito di cantina

Posti macchina

Tipo Numero Prezzo
Garage 1 28000 €
Posto macchina 1 18000 €

Descrizione



Questo appartamento convenzionale di 4 locali si trova al 1° piano del nuovo complesso edilizio di Barbiano e offre un ambiente abitativo confortevole in una costruzione sostenibile.

Le ampie finestre garantiscono una piacevole sensazione di luminosità e creano un'armoniosa connessione tra interni ed esterni. L'immobile soddisfa lo standard CasaClima A-Nature, garantendo un'elevata efficienza energetica, un eccellente isolamento acustico e un clima interno equilibrato. Dotato di riscaldamento a pavimento, impianto fotovoltaico e riscaldamento a pellet, l'appartamento vanta bassi costi di gestione e una moderna tecnologia costruttiva.

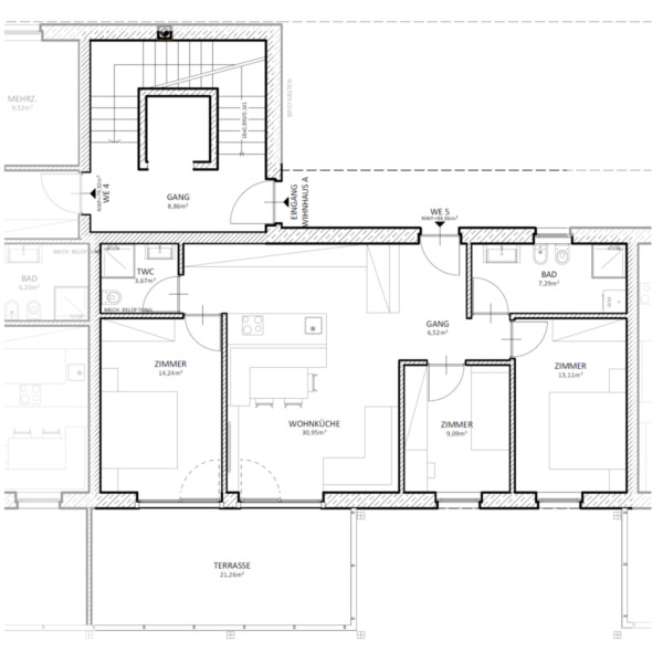
L' appartamento di 4 locali è composto da un ampio ingresso, una cucina a pianta aperta, 3 camere da letto , un bagno con finestra e un bagno di servizio, nonché un'ampia terrazza.
Oltre all'appartamento è possibile acquistare un posto auto in garage al prezzo di 28.000 € e/o un posto auto esterno al prezzo di 18.000 € .

L'immobile è convenzionato e può essere acquistato e occupato da persone con residenza o lavoro principale nella provincia di Bolzano.

Per maggiori informazioni o per fissare un appuntamento per una visita, contattateci:
Lea Demetz | ???? bozen@seeber-immobilien.com | ???? +39 339 8281766

Offerenti

Seeber Immobilien s.r.l.
Via dei portici 70
39100 Bolzano
Tel.
+39/339/8281766
Cell.
+39/340/3806901
Chiudi