Artigianato/Industriale a Appiano sulla Strada del Vino

Dati di base

Tipologia dell’oggettoArtigianato/Industriale
LocalitàAppiano sulla Strada del Vino
Prezzo d’acquisto2'080'000 €
Superficie m²1162.0
Anno di costruzione1992
StatoCurato
IDIW108307

Azioni

Carica / stampa PDF remove favorite Ricorda
Cliccare su un’immagine per far partire il diashow

Dettagli

Prezzo d’acquisto2'080'000 €
Superficie m²1162.0

Descrizione

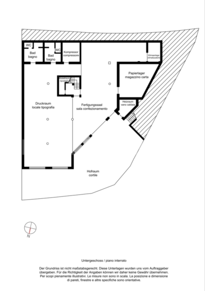
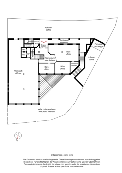
Das im Jahr 1992 errichtete Wohn-, Büro- und Geschäftshaus wurde laufend instand gehalten und kontinuierlich modernisiert. Es präsentiert sich heute in einem gepflegten Zustand und entspricht in technischer Hinsicht zeitgemäßen Anforderungen. Zu den wesentlichen Investitionen der vergangenen Jahre zählen die Installation einer Photovoltaikanlage im Jahr 2015, die umfassende Renovierung der Wohnung auf der Nord-/Westseite sowie die Erhöhung und Erneuerung des Daches auf dieser Gebäudeseite. Im Jahr 2022 wurde ein Büro im Dachgeschoss ausgebaut, gefolgt von der Installation einer energieeffizienten Wärmepumpe im Jahr 2023. Die Immobilie erstreckt sich über drei Geschosse und verfügt über eine Gesamtfläche von ca. 1.162 m². Die Kombination aus Wohn- und Gewerbenutzung eröffnet vielfältige Nutzungsmöglichkeiten und macht das Objekt sowohl für Eigennutzer als auch für Kapitalanleger mit langfristiger Perspektive attraktiv. Das Untergeschoss mit einer Raumhöhe von ca. 4,20 m und einer Nettofläche von rund 430 m² wird derzeit als Produktionsbereich genutzt und ist bis zum 31. Dezember 2028 an ein Druckstudio vermietet, wodurch eine gesicherte Einnahmesituation besteht. Die Fläche umfasst einen Druckraum, einen Fertigungssaal, ein Papierlager, Sanitärbereiche sowie mehrere Nebenräume und eignet sich für unterschiedlichste gewerbliche Nutzungen. Ein großes Sektionaltor ermöglicht eine komfortable Anlieferung. Der vorgelagerte Hofbereich mit knapp 200 m² dient überwiegend als Lager- und Stellfläche. Das Erdgeschoss mit einer Nettofläche von ca. 280 m² verfügt über einen repräsentativen Eingangsbereich mit Empfang, einen Besprechungsraum, mehrere Büroräume sowie Sanitäranlagen. Ergänzt wird die Ebene durch eine großzügige Werkstattfläche, die alternativ auch als Ausstellungs- oder Showroomfläche genutzt werden kann. Ein zugehöriger Hofbereich bietet zusätzliche Stellmöglichkeiten für mehrere Fahrzeuge. Die Deckenlast von ca. 1.500 kg/m² ermöglicht auch Nutzungen mit erhöhten gewerblichen Anforderungen. Über das Treppenhaus gelangt man in das Obergeschoss, das zwei Wohnungen sowie Aufenthaltsräume, eine Küche und zusätzliche Büroflächen umfasst. Die größere Einheit ist eine Vierzimmerwohnung mit ca. 100 m² Nettowohnfläche, bestehend aus Wohnzimmer, Küche, zwei Schlafzimmern und zwei Bädern. Die Wohnung befindet sich in gepflegtem Zustand, weist jedoch Modernisierungspotenzial auf. Die zweite Wohnung mit ca. 50 m² Nettowohnfläche wurde im Jahr 2015 umfassend renoviert. Im Zuge der Arbeiten wurde auch das Dach auf der Nord-/Westseite erhöht und erneuert. Die Ausstattung umfasst unter anderem Fußbodenheizung, erneuerte Bodenbeläge und Fenster sowie eine großzügige Terrasse. Die Raumaufteilung besteht aus Wohnzimmer, separater Küche, Schlafzimmer und Badezimmer. Beide Wohneinheiten sind derzeit vermietet und tragen zu einer stabilen Ertragssituation bei. Die Wohnungen verfügen jeweils über eigenständige Gasheizungen. Das Gebäude ist mit einer Photovoltaikanlage (ca. 20 kWp) sowie einer zentralen Staubsaugeranlage ausgestattet. Die laufenden Modernisierungsmaßnahmen und die installierte Haustechnik gewährleisten eine nachhaltige und effiziente Nutzung der Immobilie. Die Liegenschaft überzeugt durch ihre flexible Nutzbarkeit und die attraktive Verbindung von Wohnen und Arbeiten. Sie eignet sich ideal für Unternehmen, die betriebliche Flächen mit Wohnmöglichkeiten kombinieren möchten, ebenso wie für Investoren, die von einer stabilen Mieterstruktur und langfristigen Nutzungsperspektiven profitieren möchten. Besonders hervorzuheben ist die verkehrsgünstige Lage im Raum Überetsch nahe Bozen. Die unmittelbare Nähe zur Schnellstraße MeBo gewährleistet eine hervorragende Anbindung und macht den Standort für Gewerbe, Mitarbeiter und Bewohner gleichermaßen attraktiv.

Offerenti

ENGEL & VÖLKERS Südtirol
Via T. A. Edison 15
39100 BOLZANO
Tel.
+39 0471 05 45 10
Chiudi