120M² PLATZWUNDER: HIER KRIEGST DU SOGAR DIE SCHWIEGERMUTTER UNTER!
Eckdaten
| Objektart | Wohnung |
|---|---|
| Ort | Meran |
| Zimmer | 5 |
| Energieklasse | G |
| Kaufpreis | 495'000 € |
| Gesamtfläche m² | 158.0 |
| Status | Gebraucht |
| Baujahr | 1979 |
| Zustand | Gepflegt |
| ID | IW108928 |
Details
| Kaufpreis | 495'000 € |
|---|---|
| Gesamtfläche m² | 158.0 |
Beschreibung
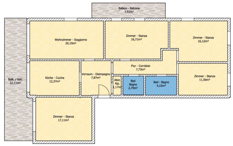
Sind wir mal ehrlich: Hast du es auch satt, in Schuhschachteln zu leben, in denen man den Bauch einziehen muss, wenn man an der Kommode vorbeiwill? In der Texelstraße in Meran-Untermais ist Schluss mit dem Kuschelkurs. Hier warten ca. 120 m² Nettofläche darauf, von deinem Lifestyle überrollt zu werden.
Ja, die erste Etage erreichst du über die Treppe – betrachte es als dein kostenloses tägliches Workout, das das Fitnessstudio ersetzt. Und ja, beim Betreten der Wohnung wirst du diesen charmanten Retro-Vibe spüren. Der Teppich und die Holzeinbauten schreien förmlich nach einer Neugestaltung. Aber Hand aufs Herz: Suchst du eine sterile Wohnung von der Stange oder ein Projekt, bei dem du dich als Design-Gott unsterblich machen kannst?
Warum solltest du dich mit drei Zimmern zufriedengeben, wenn du fünf haben kannst? Vier Schlafzimmer bieten Platz für die Kinder, das Home-Office, das Hobby-Zimmer und den begehbaren Kleiderschrank, von dem du schon immer geträumt hast. Oder bist du eher der strategische Typ? Die Fläche ist so großzügig, dass eine Teilung in zwei separate Wohneinheiten mehr als nur eine Überlegung wert ist.
Spürst du schon die Südwest-Sonne auf deiner Haut? Die zwei Balkone sind deine Logenplätze für den Meraner Feierabend. Während andere in der Innenstadt verzweifelt um den Block kreisen, fährst du lässig in deinen eigenen Garagenstellplatz. In Untermais ist das kein Luxus, das ist ein Privileg.
Wann hast du das letzte Mal eine Immobilie gesehen, die so viel Flexibilität bietet? Zentral gelegen, alles in Gehweite und trotzdem ruhig genug, um am Sonntag auszuschlafen. Die Heizung ist zentral geregelt – du musst dich also um nichts kümmern, außer um die Auswahl deiner neuen Bodenbeläge.
Diese Wohnung ist nichts für Zauderer. Sie ist für Visionäre, für Großfamilien mit Platzbedarf und für clevere Investoren. Der Teppich muss weg, aber das Potenzial bleibt. Greif zum Hörer und vereinbare deinen Besichtigungstermin. Wer zuerst kommt, saniert zuerst!

Login
Password vergessen
PDF laden/drucken
Merken










