Ausstattung
| Heizungsart | Fussbodenh. |
|---|
| Befeuerung | Gas |
|---|
| Fahrstuhl | Personenaufzug |
|---|
| Kabel/Sat/TV |  |
|---|
Beschreibung
Stilvolle 3-Zimmer-Maisonette im Herzen von Meran
Im Stadtzentrum von Meran bieten wir eine außergewöhnlich helle und hochwertig sanierte 3-Zimmer-Maisonettewohnung zum Mieten an. Die Immobilie überzeugt durch ihre großzügige Raumaufteilung, moderne Ausstattung und zentrale Lage – ideal für Paare, die urbanes Wohnen auf hohem Niveau schätzen.
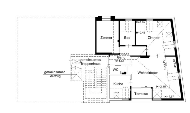
Dachgeschoss / 3. und letzter Stock:
Komfortabler Eingangsbereich mit praktischem Abstellraum / Tages-WC
Offener, lichtdurchfluteter Wohnbereich mit Zugang zur sonnigen Terrasse
Moderne Wohnküche mit direktem Terrassenzugang
Großes Hauptschlafzimmer mit maßgefertigtem Einbauregal & Flügeltüren zum Wohnbereich
Badezimmer mit Fenster, Dusche und Badewanne
Weiteres Zimmer, ideal als Schlafzimmer, Gästezimmer oder Büro
Flur verbindet die Schlafzimmer mit dem Badezimmer
Zugang zum darüberliegenden Dachboden direkt vom Flur aus
Weitere Highlights:
Erdgeschoss / Hofraum: Privater Stellplatz
1. Kellergeschoss: Eigener Kellerraum
Es besteht die Möglichkeit einen zusätzlichen Autostellplatz in einer nahegelegenen Tiefgarage für € 120,- / Monat zu mieten.
Die Wohnung wurde 2016 umfassend und hochwertig saniert: edle Böden, moderne Türen und eine geschmackvolle Gestaltung schaffen ein stilvolles Wohnambiente. Die Maisonette erstreckt sich über die oberste Etage eines gepflegten Gebäudes und bietet dadurch besonders viel Licht und Privatsphäre.
Fazit:
Diese Wohnung ist ein echtes Juwel im Zentrum von Meran – perfekt für Einheimische wie auch als stilvolle Zweitwohnung.