EXKLUSIVES PENTHOUSE MIT PANORAMATERRASSE – WANDELBAR, MIT POTENZIAL FÜR EIN WEITERES ZIMMER
Eckdaten
| Objektart | Wohnung / Penthouse |
|---|---|
| Ort | Meran |
| Zimmer | 3 |
| Etage | 3 |
| Kaufpreis | Preis auf Anfrage |
| Gesamtfläche m² | 164.0 |
| Baujahr | 2015 |
| ID | IW106316 |
Details
| Kaufpreis | Preis auf Anfrage |
|---|---|
| Gesamtfläche m² | 164.0 |
| Schlafzimmer | 2 |
| Badezimmer | 2 |
| Sep. WC | 1 |
Ausstattung
| Heizungsart | Zentral, Fernheizung, Fussbodenh. |
|---|---|
| Befeuerung | Fernwärme |
| Fahrstuhl | Personenaufzug |
| Kabel/Sat/TV | ![]() |
Beschreibung
Exklusives Penthouse mit privater 360°-Dachterrasse und Traumblick auf die Berge
Entdecken Sie Ihr neues Zuhause in luftiger Höhe! Diese moderne, lichtdurchflutete Penthousewohnung bietet höchsten Wohnkomfort und eine atemberaubende Rundumsicht. Mit einer großzügigen Wohnfläche und einer exklusiven Dachterrasse, die direkt über eine elegante Wendeltreppe erreichbar ist, genießen Sie ungestörte Privatsphäre und unvergleichliche Panoramaausblicke.
Highlights dieser einzigartigen Immobilie:
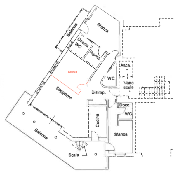
Großzügiges Open-Space-Wohnkonzept mit Küchenzeile und direktem Zugang zur Terrasse – flexibel gestaltbar, mit der Möglichkeit, bei Bedarf ein zusätzliches Zimmer abzutrennen
Zwei helle Schlafzimmer, eines mit Walk-In-Schrank & Balkon, eines mit Zugang zur Hauptterrasse und beide mit eigenem Badezimmer
Große Terrasse mit herrlichem Ausblick und direkter Verbindung zur Dachterrasse
Private 360°-Dachterrasse – perfekt für entspannte Sommerabende und grüne Oasen über den Dächern
Tages-WC & Abstellraum für maximalen Komfort
Modernes Wohnhaus der Energieklasse Klimahaus A
Aufzug, Keller & großzügige Garage für höchsten Wohnkomfort
Dieses Penthouse vereint modernes Design, Funktionalität und Aussicht auf perfekte Weise – und bietet dank der flexiblen Raumgestaltung sogar die Möglichkeit, ein weiteres Zimmer nach Ihren individuellen Bedürfnissen zu schaffen.
Kontaktieren Sie uns jetzt für eine Besichtigung und lassen Sie sich begeistern!
Teilweise handelt es sich bei den Bildern um Renderings.
Anbieter

Leonardo da Vinci Str. 9
39012 Meran

Login
Password vergessen
PDF laden/drucken
Merken








