VIER ZIMMER, STIL UND NULL KOMPROMISSE!

Eckdaten

ObjektartWohnung
OrtMeran
Zimmer4
Energieklasse
B
Kaufpreis595'000 €
Gesamtfläche m²120.0
StatusGebraucht
Baujahr1970
ZustandNeuwertig
IDIW106262

Aktionen

PDF laden/drucken remove favorite Merken
Auf ein Bild klicken zum Vergrößern

Details

Kaufpreis595'000 €
Gesamtfläche m²120.0

Beschreibung

Du träumst von einem Zuhause, das dir Raum zum Atmen gibt? Dann tritt ein in diese vollsanierte 4-Zimmer-Wohnung in Meran-Untermais – ein Ort, der Großzügigkeit, Stil und Geborgenheit vereint.

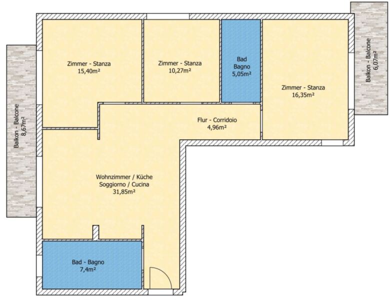
Der Grundriss überzeugt sofort: Ein Wohn- und Kochbereich von über 31 m² bildet das Herzstück. Hier lachst du mit Freunden beim Aperitiv, hier entstehen die Geschichten deines Alltags. Drei weitere Zimmer – 16,35 m², 15,40 m² und 10,27 m² – schenken dir und deiner Familie Flexibilität: Schlafzimmer mit Blick ins Grüne, Kinderzimmer voller Licht oder ein inspirierendes Homeoffice. Was darf es für dich sein?

Zwei Badezimmer setzen dem Komfort die Krone auf: ein elegantes Bad mit Wanne und Fenster für entspannte Abende, und ein zweites mit moderner Dusche für den schnellen Start in den Tag.

Und die Balkone? Gleich zwei an der Zahl, mit Ost-, West- und Nordausrichtung. Morgensonne beim Kaffee, Abendsonne beim Glas Wein, immer begleitet vom Blick auf den gepflegten Gemeinschaftsgarten. Ein Ort zum Durchatmen, mitten in der Stadt und doch so ruhig.

Hochwertige Holzböden, Fußbodenheizung und teilmöblierte Bereiche machen den Einzug leicht – Koffer packen, ankommen, wohlfühlen. Dazu gibt’s einen Kellerraum und praktische Stellplätze im Hof.

Diese Wohnung ist wie geschaffen für Familien oder Paare, die Großzügigkeit suchen, ohne auf Ruhe zu verzichten.
Greif jetzt zum Telefon – vereinbare deine Besichtigung und verlieb dich in dein neues Zuhause!

Anbieter

Profi Immobilien GmbH
Klosterstr. 28
39012 Meran
Tel.
+39/0473/201095
Schließen