Ausstattung
| Böden | Kunststoff |
|---|
| Klimatisiert |  |
|---|
| Fahrstuhl | Lastenaufzug |
|---|
| Unterkellert | Ja |
|---|
Beschreibung
Castellanum bietet eine großzügige Gewerbeimmobilie mit Produktions- und Dienstleistungsnutzung in strategischer Lage im Industriegebiet Bozen Nord zum Verkauf an, nur wenige Minuten vom historischen Stadtzentrum entfernt und mit hervorragender Sichtbarkeit sowie optimaler Verkehrsanbindung (S12 und A22).
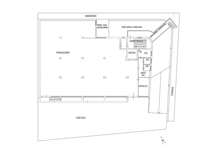
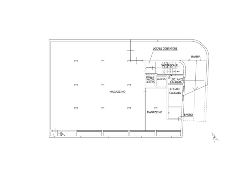
Das im Jahr 1980 errichtete Objekt erstreckt sich über drei funktionale Ebenen, die über einen internen Lastenaufzug zur exklusiven Nutzung verbunden sind:
Untergeschoss (ca. 330 m² – h ca. 3,00 m): Lagerfläche mit 2 Toren und bequemer Zufahrt für Lieferfahrzeuge über eine separate Außenrampe.
Erdgeschoss (ca. 380 m² – h ca. 3,40 m): Werkstatt/Labor mit Lager und Sanitäranlagen. Derzeit als Open Space konzipiert und daher flexibel teilbar.
1. Obergeschoss (ca. 214 m² – h ca. 3,00 m): Büro- und Laborflächen mit Zugang zu einer ca. 80 m² großen Terrasse, ideal als ergänzende Außenfläche.
Außerdem stehen 4 Autoabstellplätze im gemeinschaftlichen Hof zur exklusiven Nutzung zur Verfügung. Zusätzlich können 2 weitere Stellplätze sowie ein Büro mit 97 m² im 1. Obergeschoss zum Aufpreis von 180.000,00 € erworben werden.
Ausstattung und technische Merkmale:
-Autonome Gasheizung (Methangas) mit separatem Technikraum
-Elektrische Rollläden im Erdgeschoss
-Vollständige Beleuchtungsanlage
-Sanitäranlagen im Erdgeschoss kürzlich renoviert
Dank seiner Vielseitigkeit, großzügigen Flächen und strategischen Lage stellt diese Immobilie die ideale Lösung für Unternehmen dar, die Produktions-, Lager- und Büroflächen mit optimaler Verkehrsanbindung in Bozen suchen.