Ausstattung
| Bad | Dusche, Badewanne, Fenster |
|---|
| Küche | Einbauküche |
|---|
| Böden | Fliesen, Parkett, Dielen |
|---|
| Ausrichtung Balkon/Terrasse | Nord, Ost, West |
|---|
| Möbliert | Teilmöbliert |
|---|
| Kamin |  |
|---|
Technik
| Heizungsart | Ofen, Fernheizung |
|---|
| Befeuerung | Fernwärme |
|---|
| Kabel/Sat/TV |  |
|---|
Sonstige
| Ausblick | Panoramablick, Berge |
|---|
| Unterkellert | Ja |
|---|
PKW
| Art |
Anzahl |
Preis |
| Autoabstellplatz |
1 |
|
Beschreibung
Duplexwohnung in Niederolang am Kronplatz
In Niederolang wird diese nicht konventionierte, gut eingeteilte Duplexwohnung in attraktiver Lage zum Verkauf angeboten. Die Immobilie überzeugt durch ihre durchdachte Raumaufteilung, den gemütlichen Wohncharakter sowie die Nähe zum Skigebiet Kronplatz.
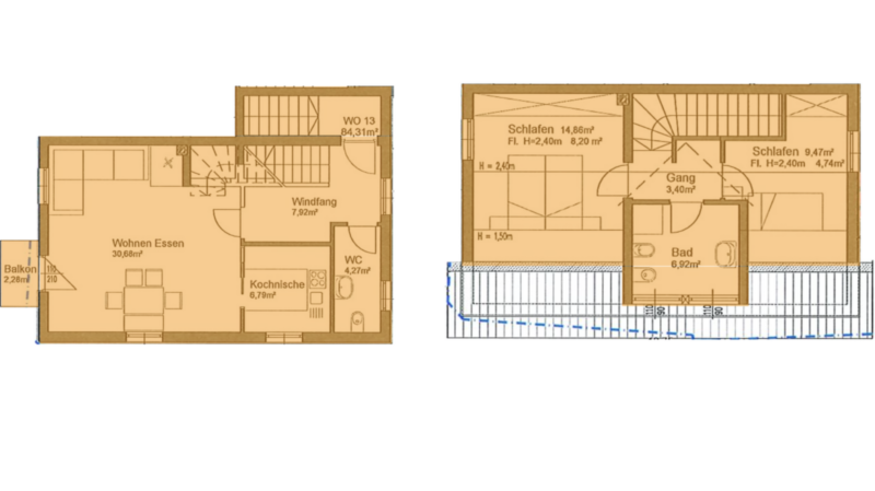
Die Wohnung erstreckt sich über zwei Ebenen und bietet im Obergeschoss einen großzügigen Wohnbereich mit Kamin, eine getrennte Wohnküche, einen einladenden Eingangsbereich sowie ein Badezimmer mit Fenster. Über eine interne Treppe gelangt man in den Nachtbereich im Dachgeschoss mit zwei Schlafzimmern und einem weiteren Badezimmer.
Zur Einheit gehören außerdem ein großer Keller mit ca. 29 m2 sowie ein Garagenstellplatz.
Da die Immobilie nicht konventioniert ist, eignet sie sich ideal als Ferienwohnung, Zweitwohnsitz oder als interessantes Investitionsobjekt in einer der beliebtesten Wintersportregionen Südtirols.
Highlights:
Nicht konventioniert
Duplex auf zwei Ebenen
Großzügiger Wohnbereich mit Kamin
Getrennte Wohnküche
2 Schlafzimmer + 2 Badezimmer
Badezimmer mit Fenster
Großer Keller (ca. 29 m²)
Garagenstellplatz inklusive
Ideale Lage nahe Skigebiet Kronplatz.