Büroetage in strategischer Lage
Eckdaten
| Objektart | Büro/Praxis / Bürohaus |
|---|---|
| Ort | Natz |
| Strasse, Hausnr | Förche 7 |
| Kaltmiete | 4'000 € |
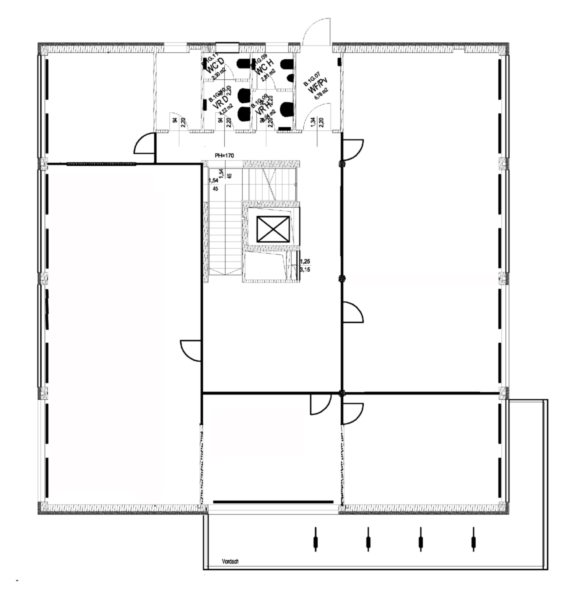
| Nettofläche m² | 420.0 |
| ID | IW106999 |
Details
| Kaltmiete | 4'000 € |
|---|---|
| Nettofläche m² | 420.0 |
| Sep. WC | 2 |
Ausstattung
| Klimatisiert | ![]() |
|---|---|
| Fahrstuhl | Personenaufzug |
Beschreibung
Großes Bürolokal im 1. Obergeschoss zu vermieten. Die Gewerbeimmobilie befindet sich in strategischer Lage mit guter Sichtbarkeit, nur 3,2 km von der Autobahn entfernt.

Login
Password vergessen
PDF laden/drucken
Merken













