Einfamilienhaus in traumhafter Lage von Mölten

Eckdaten

ObjektartHaus / Einfamilienhaus
OrtMölten
Energieklasse
B
Kaufpreis650'000 €
Gesamtfläche m²189.0
StatusGebraucht
Baujahr2009
ZustandGepflegt
IDIW106094

Aktionen

PDF laden/drucken remove favorite Merken
Auf ein Bild klicken zum Vergrößern

Details

Kaufpreis650'000 €
Gesamtfläche m²189.0

PKW

Art Anzahl Preis
Autoabstellplatz 2

Beschreibung

Dieses top gepflegte Einfamilienhaus befindet sich in sonniger und absolut ruhiger Lage im Ortsteil Schlaneid bei Mölten. Das im Jahr 2009 erbaute Gebäude präsentiert sich in hervorragendem Zustand und bietet modernen Wohnkomfort inmitten einer idyllischen Umgebung.
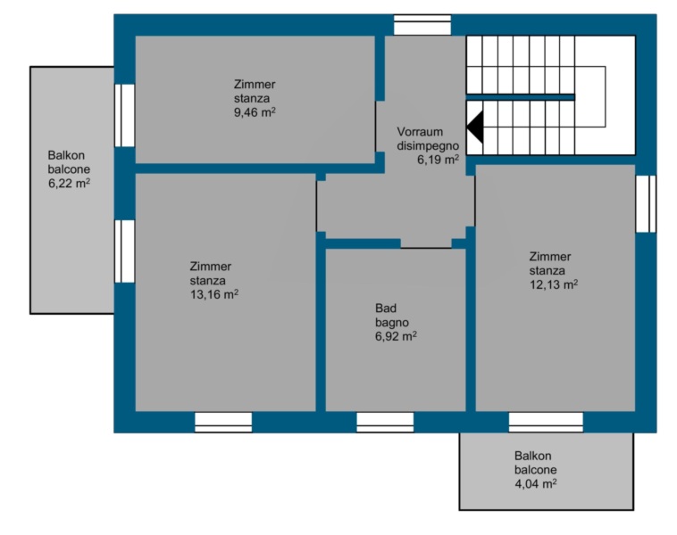
Auf einer Nettowohnfläche von rund 95 m², die sich über zwei Etagen erstreckt, überzeugt das Haus durch eine durchdachte Aufteilung. Im Erdgeschoss befindet sich ein heller Wohnbereich mit integrierter Küche, der reichlich Platz für gemütliche Stunden bietet. Ein praktisches Tages-WC ergänzt diesen Bereich. Das Obergeschoss verfügt über drei Schlafzimmer sowie ein Badezimmer, wodurch die Etage optimal als privater Rückzugsort für die ganze Familie genutzt werden kann.
Über das interne Stiegenhaus gelangt man in das großzügige Kellergeschoss, das zwei große Räume sowie den Heizraum mit moderner Pelletheizung und Silo beherbergt. Diese sorgt nicht nur für eine autonome, sondern auch für eine besonders energieeffiziente Wärmeversorgung. Die Konventionierung kann gegen Bezahlung auch gelöscht werden.
Zwei Stellplätze im Freien runden das Gesamtangebot ab und unterstreichen den praktischen Charakter dieser Immobilie.
Die Lage des Hauses ist nicht nur sonnig und ruhig, sondern auch äußerst vorteilhaft: In wenigen Gehminuten erreicht man die Möltner Seilbahn, während das Hauptdorf Mölten mit seinen Geschäften, Schulen und Dienstleistungen nur fünf Autominuten entfernt liegt.
Dieses Einfamilienhaus ist die perfekte Wahl für alle, die ein gepflegtes Zuhause suchen, das Ruhe, Sonne und hohen Wohnkomfort miteinander verbindet.

Anbieter

Rimmo Immobilien Südtirol
Innsbrucker Straße 29
39100 Bozen
Tel.
+39 0471 982 844
Schließen