Kastelbell: Residence Sonnenberg - Wohnung Nr. EG1
Eckdaten
| Objektart | Wohnung / Erdgeschoss |
|---|---|
| Ort | Kastelbell |
| Kaufpreis | 355'000 € |
| Gesamtfläche m² | 66.7 |
| Baujahr | 2026 |
| Zustand | Erstbezug |
| ID | IW105014 |
Preise
| Kaufpreis | 355'000 € |
|---|
Flächen
| Gesamtfläche m² | 66.7 |
|---|---|
| Nettofläche m² | 78.7 |
| Garten m² | 75.2 |
| Keller m² | 8.5 |
| Balkon/Terrasse m² | 17.8 |
Räume
| Stellplätze | 1 |
|---|
Ausstattung
| Heizungsart | Fussbodenh. |
|---|---|
| Befeuerung | Fernwärme |
| Fahrstuhl | Personenaufzug |
| Unterkellert | Ja |
Beschreibung
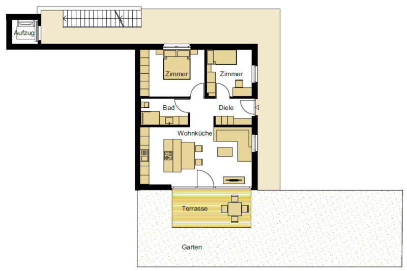
Die Wohnung Nr. EG1 befindet sich im Erdgeschoss der Residence "Sonnenberg" und besteht aus 2 Schlafzimmern, Badezimmer und einer Wohnküche, mit einer Fläche von insgesamt ca. 78,70 m².
Zudem gehört zur Wohnung eine Terrasse und ein großzügiger Garten mit ca. 75,20 m², sowie ein Keller im Untergeschoss.

Login
Password vergessen
PDF laden/drucken
Merken





