Einzelhandel in Kaltern an der Weinstraße

Eckdaten

ObjektartEinzelhandel
OrtKaltern an der Weinstraße
Kaltmiete600 €
Gesamtfläche m²55.0
IDIW108140

Aktionen

PDF laden/drucken remove favorite Merken
Auf ein Bild klicken zum Vergrößern

Details

Kaltmiete600 €
Gesamtfläche m²55.0
Badezimmer1
Wohn-/Schlafzimmer0

Beschreibung

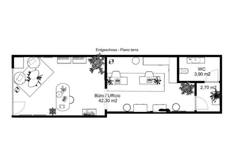
Büro im Erdgeschoss des ForumCenters in Kaltern, in einem stark frequentierten Umfeld mit hoher Besucherpräsenz. Die Einheit besteht aus zwei Büroräumen und einem WC und eignet sich ideal für Dienstleistungs- oder Beratungstätigkeiten mit Kundenkontakt.

Ein Autostellplatz in der Tiefgarage ist der Einheit zugeordnet und sorgt für zusätzlichen Komfort. Die Lage innerhalb des ForumCenters gewährleistet gute Sichtbarkeit, Erreichbarkeit und laufende Frequenz.


Lage und Umfeld dieser Immobilie:

Die Immobilie befindet sich im ForumCenter in Kaltern, in der Bahnhofstraße, einer der belebtesten und strategisch wichtigsten Lagen des Ortes. Das etablierte Handels- und Dienstleistungsumfeld sorgt für eine hohe Sichtbarkeit sowie eine konstante Frequenz an Besuchern und Kunden.

Das ForumCenter vereint verschiedene Geschäfte und Serviceeinrichtungen und schafft dadurch ein lebendiges, funktionales Umfeld. Die Einheit ist sowohl zu Fuß als auch mit dem Auto bequem erreichbar. Die Nähe zu den wichtigsten Verkehrsverbindungen sowie zu sämtlichen Dienstleistungen des Zentrums gewährleistet eine ausgezeichnete Erreichbarkeit und hohe Alltagstauglichkeit, inklusive praktischer Möglichkeiten für Anlieferung und Warenumschlag in unmittelbarer Nähe.

Insgesamt bietet die Lage ideale Voraussetzungen für Handels-, Dienstleistungs- oder vergleichbare Nutzungen, bei denen Sichtbarkeit, Kundenfrequenz und logistische Effizienz eine zentrale Rolle spielen.


Vermittlungsvergütung:

Der Makler hat Anspruch auf die Provision, wenn das Geschäft durch sein Zutun zustande gekommen ist.

Provision in Höhe von 10 % (zehn Prozent) zzgl. gesetzlicher MwSt. auf den Jahresmietpreis.

Der Anspruch des Maklers entsteht mit Abschluss des Geschäfts und ist vom Mieter an den Makler zeitgleich mit der Unterzeichnung des Mietvertrages zu entrichten.

Wir bemühen uns, auf dieser Website richtige und vollständige Informationen zur Verfügung zu stellen. Wir übernehmen jedoch keine Haftung oder Garantie für die Aktualität, Richtigkeit und Vollständigkeit der bereitgestellten Informationen und Bildmaterial. Zweidimensionale Grundrisse und dreidimensionale Renderings sind größtenteils figurativ und nicht immer maßstabsgetreu bzw. entsprechen nicht immer der Realität. Wir behalten uns das Recht vor, ohne vorherige Ankündigung Änderungen oder Ergänzungen der bereitgestellten Informationen vorzunehmen.

Anbieter

IGOR DAPUNT REAL ESTATE
Leonardo da Vinci Str., 16
39100 Bozen (BZ)
Tel.
+390471324928
Schließen