Neubauwohnung mit Garten

Eckdaten

ObjektartWohnung / Erdgeschoss
OrtEppan an der Weinstraße
Zimmer3
Energieklasse
A
Kaufpreis590'000 €
Gesamtfläche m²110.0
StatusNeu
Baujahr2025
ZustandErstbezug
IDIW109232

Aktionen

PDF laden/drucken remove favorite Merken
Auf ein Bild klicken zum Vergrößern

Details

Kaufpreis590'000 €
Gesamtfläche m²110.0

PKW

Art Anzahl Preis
Autoabstellplatz 1 25000 €

Beschreibung

Diese moderne 3-Zimmer-Neubauwohnung befindet sich in ruhiger und zugleich zentraler Lage von Eppan, nur wenige Schritte von allen wichtigen Einrichtungen entfernt. Das Wohnhaus umfasst lediglich sechs Einheiten und wird im energieeffizienten KlimaHaus-A-Standard errichtet, was für nachhaltiges und zukunftsorientiertes Wohnen steht.
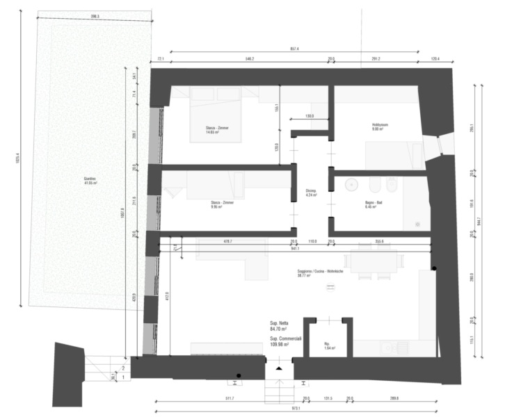
Die Wohnung liegt im Erdgeschoss und verfügt über einen privaten Garten mit ca. 41 m², der dank der Südausrichtung sonnige Stunden und ein angenehmes Wohngefühl im Freien ermöglicht.
Mit einer Nettowohnfläche von knapp 85 m² bietet die Immobilie eine durchdachte Raumaufteilung: Der großzügige Wohnbereich mit integrierter Kochecke umfasst rund 40 m² und bildet das Herzstück der Wohnung. Ergänzt wird das Raumangebot durch zwei Schlafzimmer, ein Badezimmer sowie einen praktischen Abstellraum. Zusätzlich steht ein ca. 9 m² großer Hobbyraum zur Verfügung, der vielseitig genutzt werden kann, etwa als Büro, Fitnessraum oder zusätzlicher Stauraum.
Die Kombination aus ruhiger Lage, moderner Bauweise und guter Anbindung sorgt für eine hohe Wohnqualität. Die Fertigstellung und Übergabe der Wohnung ist für November 2026 geplant.
Ein Stellplatz im Freien kann gegen Aufpreis von 25.000 € erworben werden und ergänzt das Angebot sinnvoll.
Insgesamt handelt es sich um eine hochwertige Neubauwohnung mit Garten, die Komfort, Energieeffizienz und eine attraktive Lage ideal miteinander verbindet.

Anbieter

Rimmo Immobilien Südtirol
Innsbrucker Straße 29
39100 Bozen
Tel.
+39 0471 982 844
Schließen