Geschäftslokal mitten in der Altstadt
Eckdaten
| Objektart | Einzelhandel / Ladenlokal |
|---|---|
| Ort | Brixen |
| Strasse, Hausnr | Via Mercato Vecchio 19b |
| Kaltmiete | 1'915 € |
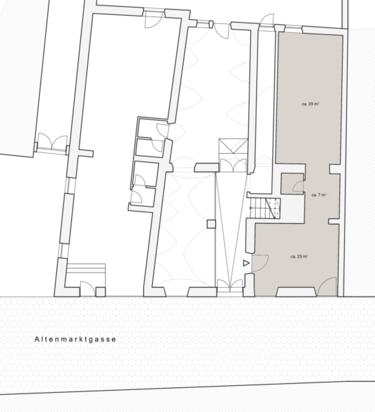
| Nettofläche m² | 71.0 |
| ID | IW105023 |
Details
| Kaltmiete | 1'915 € |
|---|---|
| Nettofläche m² | 71.0 |
Beschreibung
Im Herzen von Brixen wird eine gut eingeführte Geschäftstätigkeit inklusive kompletter Einrichtung und aufrechtem Mietvertrag zum Verkauf angeboten. Die Geschäftsfläche zeichnet sich durch eine hervorragende Sichtbarkeit aus und bei Bedarf ist ein Magazin mit ca. 17 m² separat verfügbar.

Login
Password vergessen
PDF laden/drucken
Merken






