Ausstattung
| Heizungsart | Fernheizung |
|---|
| Klimatisiert |  |
|---|
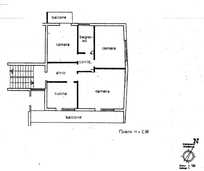
| Hallenhöhe | 2.88 |
|---|
PKW
| Art |
Anzahl |
Preis |
| Garage |
1 |
40000 € |
Beschreibung
Nur wenige Schritte vom Grieser Platz entfernt steht eine helle Wohnung mit ca. 102 m² Verkaufsfläche und Garage zum Verkauf.
Die Immobilie befindet sich im ersten Stock eines gepflegten Mehrfamilienhauses mit großzügigen Gemeinschaftsflächen.
Die Wohnung, mit Süd-Südost-Ausrichtung, besteht aus einem Wohnzimmer mit Balkon, getrennter Küche, zwei Schlafzimmern, Tageslichtbad und Vorraum.
Zur Immobilie gehören außerdem zwei Balkone (insgesamt ca. 17 m²) sowie eine Garage im Untergeschoss, die auch direkt über das Treppenhaus erreichbar ist.
Die Lage ist ruhig und bestens angebunden, nur 200 m vom Grieser Platz und der Guntschna-Promenade entfernt, mit öffentlichen Verkehrsmitteln, Radweg und zahlreichen Geschäften in unmittelbarer Nähe.
Wichtige Ausstattungsmerkmale:
• Fernwärmeanschluss
• Klimaanlage
• Videogegensprechanlage und Außenüberwachung
• Treppenlift für eingeschränkte Mobilität
• Dreifachverglasung der Fenster
Eine helle und komfortable Wohnung, ideal für alle, die Zentrumsnähe und Ruhe im beliebten Stadtteil Gries suchen.
Preis: € 480.000 + € 40.000 Garage