AM OBSTMARKT in Bozen Im denkmalgeschützten Palazzo In der Geschichte wohnen in Südtirol
Eckdaten
| Objektart | Wohnung / Etage |
|---|---|
| Ort | Bozen |
| Zimmer | 3 |
| Etage | 2 von 5 |
| Energieklasse | E |
| Kaufpreis | 540'000 € |
| Gesamtfläche m² | 81.0 |
| Status | Gebraucht |
| Zustand | Neuwertig |
| ID | IW106332 |
Details
| Kaufpreis | 540'000 € |
|---|---|
| Gesamtfläche m² | 81.0 |
Beschreibung
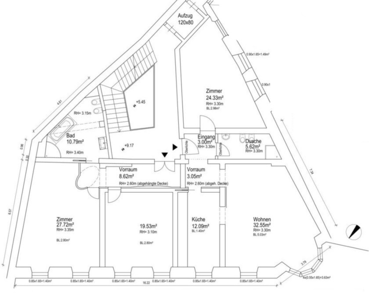
Wir verkaufen eine fantastische 3-Zimmerwohnung, 81 m2 netto, bestehend aus einem sehr großen Doppelschlafzimmer mit Ankleidekabine, Salon mit tollem Erker direkt auf den Bozner Obstmarkt, Duschbad, Wohnküche. Hohe Decken 3,30 m. mit viel Flair und schönen Stukarbeiten. Komplett hochwertig auf Maß möbliert (inklusive), sofort verfügbar.
Euro 540.000,00. KEINE KONVENTIONIERUNG. Keine MwSt.
Die hier veröffentlichten Immobilien entsprechen nur einem Teil unseres Immobilienangebotes. Alle anderen Immobilien stellen wir Ihnen gerne im persönlichen Gespräch vor.
Anbieter

Via della Rena 11 (angolo P.zza Walther)
39100 Bolzano

Login
Password vergessen
PDF laden/drucken
Merken


















