Ausstattung
| Böden | Kunststoff |
|---|
| Klimatisiert |  |
|---|
| Fahrstuhl | Lastenaufzug |
|---|
| Unterkellert | Ja |
|---|
Beschreibung
Castellanum bietet eine großzügige Gewerbeimmobilie mit Produktions- und Dienstleistungsnutzung zur Miete an. Die Liegenschaft befindet sich in strategischer Lage in der Industriezone Bozen Nord, nur wenige Minuten vom historischen Stadtzentrum entfernt, mit hervorragender Sichtbarkeit und optimaler Erreichbarkeit dank der Nähe zu den Hauptverkehrsachsen (S12 und A22).
Das im Jahr 1980 errichtete Objekt erstreckt sich über drei funktionale Ebenen, die durch einen internen Lastenaufzug zur exklusiven Nutzung verbunden sind:
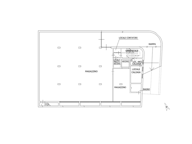
Untergeschoss (ca. 330 m² – Höhe ca. 3,00 m): Lager-/Depotfläche mit 2 Toren und bequemer Zufahrt für Lieferwagen über eine reservierte Außenrampe.
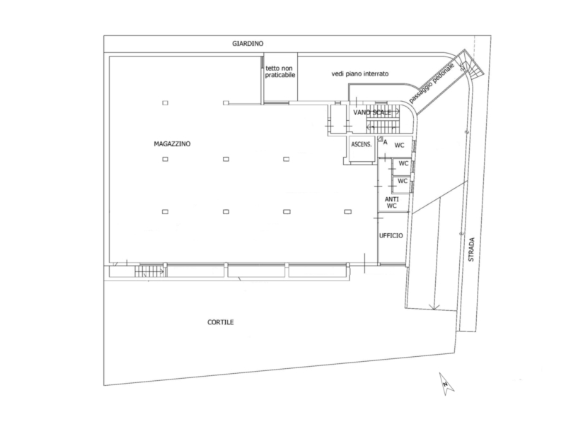
Erdgeschoss (ca. 380 m² – Höhe ca. 3,40 m): Werkstatt mit Lager und Sanitäranlagen. Derzeit als Open Space konzipiert und bietet maximale Flexibilität bei der Raumaufteilung.
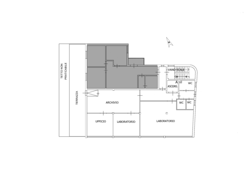
1. Obergeschoss (ca. 214 m² – Höhe ca. 3,00 m): Büros und Labor mit Zugang zu einer ca. 80 m² großen Terrasse, ideal als ergänzende Außenfläche.
Im Außenbereich stehen zudem 4 exklusive Autoabstellplätze im gemeinschaftlichen Hof zur Verfügung. Zusätzlich können 2 weitere Stellplätze sowie ein Büro mit 97 m² im 1. Obergeschoss angemietet werden.
Ausstattung und technische Merkmale:
Autonome Gasheizung (Methangas) mit eigenem Technikraum
Elektrische Rollläden im Erdgeschoss
Vollständige Beleuchtungsanlage
Sanitäranlagen im Erdgeschoss kürzlich renoviert
Dank seiner Vielseitigkeit, der großzügigen Fläche und der strategischen Lage stellt diese Immobilie die ideale Lösung für Unternehmen dar, die Produktions-, Lager- und Büroflächen mit optimaler Verkehrsanbindung in Bozen suchen.