Ausstattung
| Böden | Kunststoff |
|---|
| Klimatisiert |  |
|---|
| Fahrstuhl | Lastenaufzug |
|---|
| Unterkellert | Ja |
|---|
Beschreibung
Castellanum bietet eine große Produktionsimmobilie zum Verkauf an, die strategisch günstig im Industriegebiet von Bozen Nord liegt, nur wenige Minuten vom Stadtzentrum entfernt und dank der Nähe zu den Hauptverkehrsstraßen (S12 und A22) sehr gut sichtbar und erreichbar ist.
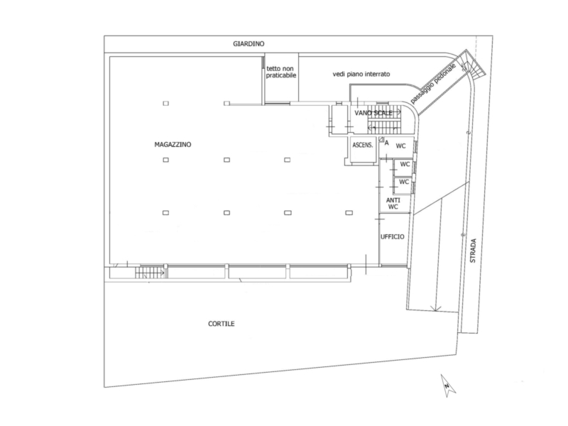
Das 1980 errichtete Gebäude verfügt über drei Ebenen, die durch einen eigenen internen Lastenaufzug erreichbar sind.
- Kellergeschoss (ca. 330 m² - H ca. 3,00 m): Lager/Lagerhalle mit 2 Toren und bequemer Zufahrt für Lieferwagen über eine eigene Außenrampe.
- Erdgeschoss (ca. 370 m² - H ca. 3,40 m): Werkstatt mit Lager und Produktion. Derzeit in offener Raumkonfiguration, bietet es maximale Flexibilität bei der Raumaufteilung.
- Obergeschoss (ca. 290 m² - H ca. 3,00 m): Büros und Labor, verbunden mit einer 80 m² großen Terrasse, die sich ideal als externer Versammlungsort eignet.
Im Außenbereich befinden sich außerdem 6 private Parkplätze.
Ausstattung und technische Merkmale:
- Unabhängige Methangasheizung mit eigenem Technikraum
- Elektrische Rollläden im Erdgeschoss
- Komplette Beleuchtungsanlage
- Kürzlich renovierte Bäder im Erdgeschoss
Dank seiner Vielseitigkeit, seiner großen Fläche und seiner strategischen Lage ist dieses Objekt die ideale Lösung für Unternehmen, die Produktions-, Lager- und Büroräume mit guter Anbindung an die Hauptverkehrsstraßen von Bozen suchen.