Bürolokal in der Pfarrhofstraße zu verkaufen
Eckdaten
| Objektart | Büro/Praxis / Bürofläche |
|---|---|
| Ort | Bozen |
| Kaufpreis | 125'000 € |
| Gesamtfläche m² | 59.0 |
| Baujahr | 1992 |
| ID | IW108940 |
Details
| Kaufpreis | 125'000 € |
|---|---|
| Gesamtfläche m² | 59.0 |
| Nettofläche m² | 52.5 |
| Sep. WC | 2 |
| Stellplätze | 2 |
Ausstattung
| Befeuerung | Gas |
|---|---|
| Fahrstuhl | Personenaufzug |
| Unterkellert | Nein |
Beschreibung
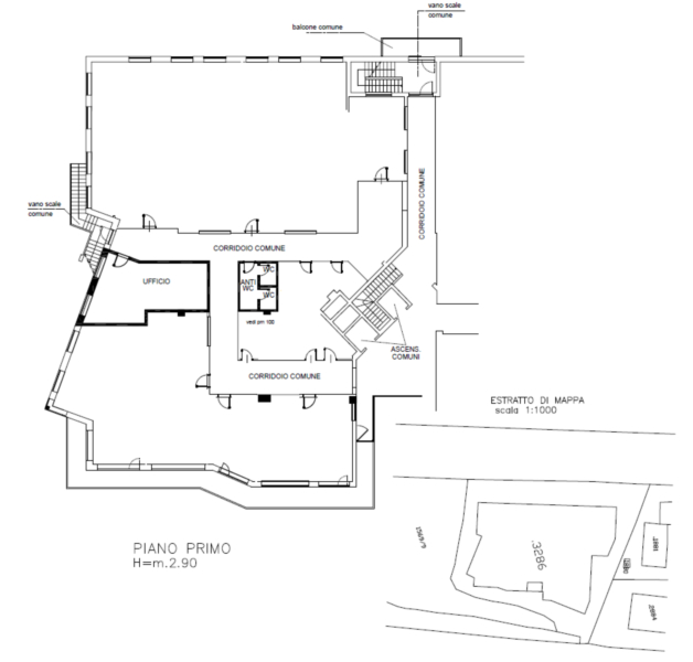
Das Büro befindet sich im 1. Stock und besteht aus einem großen open space.
Die zwei Toiletten sind privat und befinden sich außerhalb des Büros.
Der erste Stock ist auch mit dem Aufzug erreichbar.
Katasterkategorie: A/10.
Die Nettofläche beträgt etwa 52,5 Quadratmeter.
Im Untergeschoss können Sie eventuell auch einen Stellplatz kaufen oder einen Stellplatz in unmittelbarer Nähe.
Anbieter

Immobilien Niederkofler GmbH - seit 1948
G.-Gallilei-Straße 6
39031 Bruneck
G.-Gallilei-Straße 6
39031 Bruneck

Login
Password vergessen
PDF laden/drucken
Merken


















