ZWEIFAMILIENHAUS IM ROHBAU MIT GROSSZÜGIGEM GRUNDSTÜCK IN RUHIGER LAGE

Eckdaten

ObjektartHaus / Einfamilienhaus
OrtAlgund
KaufpreisPreis auf Anfrage
Grundstück m²957.0
StatusNeu
ZustandRohbau
IDIW106765

Aktionen

PDF laden/drucken remove favorite Merken
Auf ein Bild klicken zum Vergrößern

Details

KaufpreisPreis auf Anfrage
Grundstück m²957.0

Beschreibung

Wohnhaus mit zwei Wohneinheiten in Rohbauzustand – in ruhiger Lage von Forst/Algund

Zum Verkauf steht ein Wohnhaus mit zwei eigenständigen Wohneinheiten in der Fraktion Forst, Gemeinde Algund, umgeben von weitläufigem landwirtschaftlichem Grün. Die Immobilie bietet ein hohes Maß an Privatsphäre und Raum zur individuellen Gestaltung.

Die Grundstücksfläche beträgt 957 m² und ermöglicht die Anlage eines großzügigen Gartens oder Parkbereichs rund um das Haus. Das Stadtzentrum von Meran ist in wenigen Minuten erreichbar, ebenso wie das Dorfzentrum von Algund über den nahegelegenen Fahrradweg entlang der Etsch, der eine schnelle und sichere Anbindung garantiert.

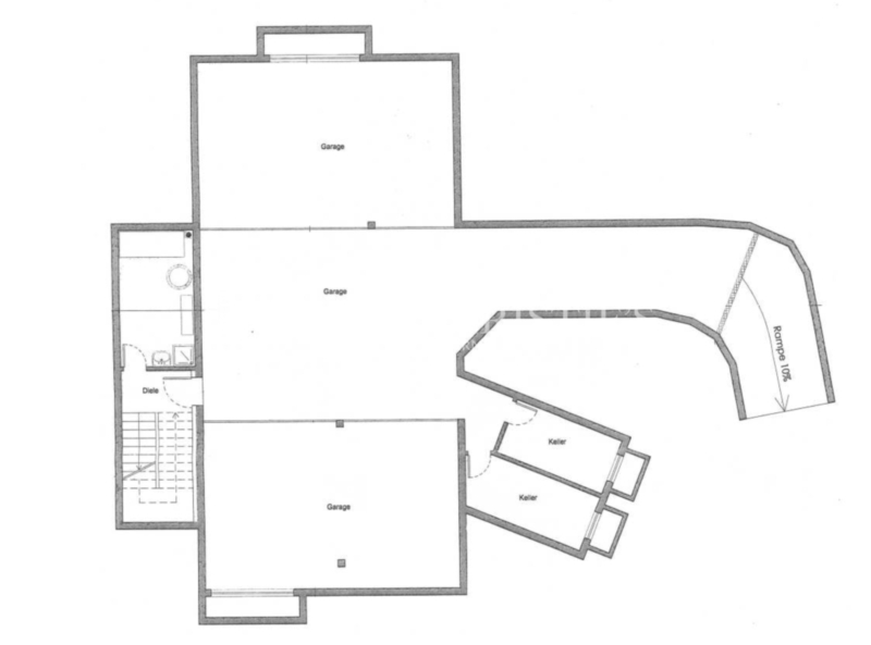
Raumaufteilung:
- Kellergeschoss: Großzügige Tiefgarage mit mehreren Stellplätzen, zwei Kellerabteile
- Erdgeschoss: Wohneinheit mit Eingangsbereich, Wohnküche, Tages-WC, Diele, zwei Abstellräumen sowie drei Schlafzimmern – jeweils mit eigenem Bad und Zugang zu den Terrassen
- Obergeschoss: Wohneinheit mit identischem Grundriss – Eingangsbereich, Wohnküche, Tages-WC, Diele, zwei Abstellräume, drei Schlafzimmer mit drei Bädern und Terrassen

Die Rohbauarbeiten sind abgeschlossen, inklusive Außenputz. Das Dach wurde isoliert und ist bereits fertiggestellt.

Diese Immobilie bietet eine hervorragende Gelegenheit, ein Mehrfamilienhaus oder ein Wohnprojekt nach individuellen Vorstellungen zu realisieren – in ruhiger, sonniger Lage mit idealer Nähe zu Meran und Algund.

Anbieter

Dr. Benedetti Real Service® Christie's International Real Estate

Leonardo da Vinci Str. 9
39012 Meran
Tel.
+39/0473/236613
Schließen